Преимущества низкого поддона
Использование душевой кабины с низким поддоном имеет массу положительных сторон:
- все конструкции разбираются по моделям, поэтому они отлично вписываются в любой интерьер и делают его более живым;
- душ с низким поддоном отлично подойдёт для небольшого помещения, его монтаж не займёт много времени;
- конструкции такого типа очень разнообразны, они отлично дополняют интерьер и полностью вписываются в него;
- за счёт низкого поддона и наличия плотной двери вода не будет разбрызгиваться по полу, кроме того, мыть кабину достаточно легко;
- во время принятия водных процедур в такой ванной очень удобно следить за ребёнком или помогать пожилому человеку.
Однако, несмотря на это, установка кабины с низким поддоном имеет и свои минусы.
Универсальная схема подготовки коммуникаций
Такая схема сборки подходит почти под все душевые кабины,например по этой схеме вы сможете собрать душевую кабину размером 80 на 80 сантиметров, 90 на 90 сантиметров, 100 на 100 сантиметров.
Общая схема сборки душевой кабины
Недостатки
К недостаткам поддонов низкого уровня можно отнести следующие:
- такие модели не всегда имеют хорошую герметичность, поэтому вам стоит позаботиться об установке шторок или дверей;
- низкие бортики не дают возможности набрать воду для того, чтобы покупать малыша. Вы также не сможете использовать резервуар для хранения разного рода продуктов;
- сам поддон душа очень медленно нагревается, поэтому у многих людей это может вызвать дискомфорт.
Разновидности душевых с низким поддоном
Душевые кабины имеют отличия по материалам, из которых они изготавливаются, а также по типу, форме и наличию тех или иных функций.
Зачастую поддоны делают из чугуна, стали, кварила или акрила:
- чугун – материал не только тяжёлый, но и очень дорогой. Он отлично удерживает тепло в отличие от стали и акрила;
- поддон из стали более «громкий», кроме того, он может прогибаться под весом человека;
- многие люди предпочитают акрил, так как он заглушает звук воды, является более прочным и имеет разные цветовые решения;
- кварил – весьма интересный материал, в котором собраны достоинства акрила и красота каменного изделия. При желании душевая кабина может создаваться из натурального камня по индивидуальному заказу.
Если размеры вашей ванны позволяют вам купить большую кабину, то вы можете выбрать модель с установленным сиденьем. В некоторых душевых с низком поддоном у вас есть возможность использовать аромаэффекты, музыкальное сопровождение.
В таких моделях есть сенсорный экран, позволяющий переключать режимы. Большую популярность имеют душевые кабины, обладающие раздвижными дверями. Но, если в вашей ванной есть достаточно места, можно установить модель с распашными дверьми.
Угловые модели душевых кабин с низким поддоном – отличный вариант для особо маленьких ванных комнат. Кроме того, чтобы произвести монтаж такого устройства не нужно иметь специальные навыки – важно просто подойти к вопросу ответственно и ознакомиться со схемой установки кабины.
Подготовка к установке кабины
После того, как кабина выбрана и доставлена, возникает вопрос – как подключить душевую кабину? Обязательно ли приглашать специалиста, или можно справиться с этой работой самостоятельно? Если имеется схема сборки и минимальный набор знаний, то вполне можно обойтись своими силами.

Конструктивно душевая кабина состоит из четырех основных элементов:
- поддон на регулируемых по высоте ножках,
- крыша,
- двери с роликовым механизмом,
- стенка и боковые панели.
В комплект поставки входит пошаговая схема по сборке на русском языке. Ее наличие необходимо проверить еще на этапе доставки. Прежде чем начать монтаж душевой кабины своими руками, необходимо проверить наличие всех составных частей в соответствии с инструкцией и освободить их от упаковочной пленки.
Заранее необходимо подготовить все инструменты и материалы, которые потребуются в процессе монтажа. Сюда входят:
- инструменты – ключи, отвертки, шуруповерт, дрель, уровень, рулетка, резьбонарезной клупп;
- расходники – герметик, герметизирующая и изоляционная ленты для душевой кабины;
- канализационная арматура – сифон, фитинги, шланги и трубы.

Важно! Бюджетные модели душевых кабин собрать и подключить к канализации самостоятельно не сложно. Если кабина предусматривает наличие многих функций, лучше доверить ее сборку специалисту, так как нарушение правил установки влечет к прекращению гарантийного обслуживания.
Подготовка помещения
Прокладка коммуникаций
Установка душевой кабинки предполагает достаточно серьезную реконструкцию всей ванной комнаты, так что браться за работу стоит в самом начале ремонта.
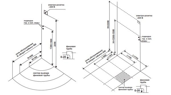
На первом этапе нам нужно подготовить все коммуникации:
- После снятия отделки со стен и пола берем перфоратор с насадкой-долотом и проделываем в стенах штробы для труб водоснабжения.
- В штробы устанавливаем кронштейны, к которым крепим полиэтиленовые или металлопластиковые трубы, присоединенные к стоякам горячей и холодной воды.
- После этого закрепляем выводы труб на стене и заделываем штробы строительным раствором.
- Так же поступаем и с полом: проделываем канавку, в которую укладываем канализационную трубу, подключенную к стояку. Вывод располагаем на уровне пола таким образом, чтобы к нему можно было подключить сифон, расположенный под поддоном.
- Если в ванной нет розетки, то делаем еще одну штробу, в которой укладываем кабель для подключения кабинки к электросети. Обратите внимание! Кабель стоит поместить в гидроизоляционную гофротрубу или пластиковый короб.
- Как правило, установка душевой своими руками в квартире требует вмешательства и в вентиляционную систему. Кабинки открытого типа не являются герметичными, потому при их использовании в помещении возрастает уровень влажности. Естественной вытяжки для ее удаления явно не хватит, так что нам нужно прочистить воздуховод и разместить в нем вытяжной вентилятор.
Только после того, как все коммуникации будут проложены, можно приступать к отделке стен и пола.
Гидроизоляция и отделка
Как мы отметили выше, наличие душевой кабинки практически всегда приводит к повышению влажности в ванной комнате. Соответственно, во избежание поражения плесневыми грибками нам необходимо выполнить ряд мероприятий.
Работаем по такой схеме:
- Выполняем черновое выравнивание стен и пола. Особое внимание уделяем участку под душевой.
- Затем обрабатываем бетон проникающим антисептиком. Делается это для того, чтобы максимально уничтожить колонии микроорганизмов и споры плесневых грибов, находящиеся в порах.
- На стены наносим проникающую грунтовку на основе жидкого акрила. Она не только создаст дополнительный влагозащитный барьер, но и обеспечит сцепление облицовки с основанием.
- Гидроизоляцию пола выполняем по одной из двух доступных технологий. Можно уложить на основание водонепроницаемую мембрану, а можно нанести жидкий состав на основе битума или каучука. Обмазочная гидроизоляция является более трудоемкой, но в то же время она значительно эффективнее.
- Поверх гидроизоляции укладываем армированную стяжку толщиной около 5 см. Класть кафель на битум или мембрану из ПВХ, сами понимаете, проблематично.
- Используя влагостойкий клей на цементной основе, облицовываем пол и стены кафельной плиткой. После полимеризации клея затираем швы пастой, в состав которой обязательно должен входить силикон – так жидкость не будет просачиваться к бетону.
Конечно, из-за всех дополнительных гидроизоляционных мероприятий цена отделки возрастет, но альтернативы, пожалуй, и нет. Защищать помешение от влаги нужно в любом случае, и чем эффективнее мы это сделаем, тем более комфортным будет микроклимат в ванной комнате.
Подключение кабины к водоснабжению
Когда сборка душевой кабины почти закончена, необходимо произвести подключение ее к водоснабжению.
Для этого потребуются шланги и металлопластиковые трубы. Порядок монтажа:
- в первую очередь готовятся все материалы, обрезаются трубы и подбираются фитинги, краны;
- перекрывается водопровод в ванной комнате, подключаются краны для подачи воды в кабину;
- краны соединяются с душевой кабиной заранее подготовленными трубами;
- подается вода для проверки герметичности.

Если кабина будет устанавливаться на верхних этажах многоэтажных домов, то для обеспечения ее функций (например, гидромассажа), может не хватать напора воды. Тогда потребуется насос и резервуар для подачи воды. Но, это скорее исключение из правил – обычно напора воды для работы душевой кабины вполне достаточно.
Первый запуск душевой кабины
Когда установка душевой кабины своими руками подошла к концу, остается только произвести первый запуск и проверить ее работоспособность.
Перед запуском необходимо еще раз проверить надежность крепления всех гаек, герметичность отверстий и стыков. Поддон лучше проверить под тяжестью собственного веса – потоптаться в нем. Он не должен издавать никаких звуков и шататься.
Перед включением кабины еще раз тщательно проверьте герметичность всех соединений
После визуальной проверки можно включить подачу воды. Кабинку с включенной водой лучше оставить на 10-15 минут, чтобы убедиться в ее герметичности. При обнаружении даже минимальных подтеков, их необходимо обязательно устранить.
Соблюдая порядок действий, описанный в статье, подключение кабины можно произвести в минимальные сроки и без финансовых затрат.
Монтаж кабинки
Установка поддона
Как правило, схема установки душевой кабины поставляется в комплекте с самим изделием. Если же вам не повезло, и инструкции вместе с деталями нет, или вы вообще собираете душ из самостоятельно подобранных элементов – не беда.
Сам процесс монтажа обычно интуитивно понятен, и ниже мы рассмотрим его основные аспекты.
Начинать сборку конструкции нужно снизу вверх, потому на первом этапе нам следует правильно установить поддон. От качества выполнения этой задачи во многом зависит итоговый результат, потому что наличие стабильного основания крайне важно.
Работаем так:
- Низкие поддоны достаточно просты в монтаже. Если мы постарались и вывели канализационную трубу на уровень пола, то нам остается только подключить сифон и поставить чашу поддона на выбранное место. Обратите внимание! Иногда для герметизации и крепления используют монтажную пену или слой раствора, но делать это отнюдь не обязательно.
- Средние и глубокие поддоны более сложны в работе. Они обычно комплектуются каркасом, потому нам нужно собрать опорную конструкцию и присоединить ее к изнаночной стороне основания душевой кабины.
- Далее поддон с опорами устанавливаем н пол и присоединяем к сифону. Обычно для этой цели используется короткий отрезок гибкой гофры, который позволяет перемещать нижнюю часть кабинки после подключения.
- Затем берем уровень и проверяем, насколько ровно стоит вся конструкция. При наличии малейших отклонений от плоскости используем гаечный ключ и вращением регулировочных гаек на ножках корректируем положение изделия.
- После окончательного выравнивания проверяем герметичность присоединения сифона, вливая в поддон небольшое количество воды. Делать это нужно именно в этот момент, поскольку в процессе корректировки положения каркаса сифон может «отойти» от крепления.
Только в том случае, когда сифон закреплен идеально, приступаем к установке боковых панелей, закрывающих борта поддона –так называемой «юбки».
После этого тщательно герметизируем все щели силиконом. Собирать верхнюю часть лучше на следующий день – так герметик успеет полимеризоваться.
Сборка верхней части
Дальнейшая установка душевых кабинок предусматривает монтаж ограждения, подключение оборудования и закрепление крыши.
Все эти действия выполняем в такой последовательности:
- К поддону крепим вертикальные стойки и направляющие для неподвижных частей ограждения. Если это необходимо, устанавливаем отдельные направляющие, по которым будут двигаться скользящие створки дверей.
- Собираем рамы, в которые устанавливаем либо поликарбонатные панели, либо стекла. При использовании упрочненных стекол или триплекса возможно также безрамное остекление.
- В пазы направляющих укладываем либо уплотнительный полимерный профиль, либо слой силиконового герметика.
- Устанавливаем остекление, тщательно выравнивая все панели.
- Отдельно собираем створки дверей: на торцы надеваем гидроизоляционный уплотнитель, а в специальные отверстия вставляем ручки, которые затягиваем крепежными гайками с полимерными прокладками. Обратите внимание! Многие производители комплектуют дверцы кабинок уплотнительными контурами с магнитными вставками. Такие изделия очень удобны, поскольку облегчают плотное закрытие дверей.
- Створки либо навешиваем на петли, либо устанавливаем на направляющие. Проверяем движение створок: они не должны нигде «затирать» при контакте с другими деталями кабинки. Если затирание обнаружено, корректируем положение створок, вращая регулировочные винты на петлях либо специальных роликах.
Далее подключаем оборудование:
- Шланги от крана и душа присоединяем к выводам системы водоснабжения.
- Провода собираем в клеммную колодку и подключаем к электросети, не забывая о качественной изоляции.
После этого собираем крышу:
- В корпус устанавливаем лейку душа, вентилятор, подсветку, динамик и другие компоненты.
- Подключаем все коммуникации к проводам и внутренним шлангам.
- Надеваем крышу на стойки и фиксируем крепежными болтами.
После этого проверяем работоспособность всех систем. Если функционирование кабинки не вызывает нареканий, берем силиконовый герметик и промазываем все швы, обеспечивая защиту от протекания.
Силикон в закрытых швах сохнет около суток, так что пользоваться кабинкой можно через 24 часа после установки.
Источник: https://gidroguru.com/vnutrennyaya-kanal/razvodka/dush-kabiny/2624-ustanovka-dushevoj-kabiny
Что представляет собой душевой бокс
Бокс для принятия душа – это одновременное совмещение душевой кабинки и ванны. Для небольших по размеру ванных комнат душевой бокс будет самым выгодным решением. Кабинка бокса оснащена глубоким поддоном, это позволяет как принимать душ, так и понежиться в ванне.
На рынке сантехники представлен большой выбор различных моделей душевых боксов. В продаже можно встретить душевые боксы разных размеров, угловые и прямоугольные модели, с плоским или с глубоким поддоном, в котором одновременно могут разместиться два взрослых человека. Такие прямоугольные гидробоксы требуют простора в ванной комнате. Помимо этого, большинство моделей имеют расширенный набор функций.
Гидромассажный бокс одновременно сочетает в себе несколько возможностей – принятия ванны (можно набрать воду в глубокую емкость поддона) и душа, а также дополнительных — встроенную систему водяного массажа и даже функцию подачи пара.
Независимо от стоимости, каждая модель душевого бокса оснащена панелью, позволяющей самостоятельно регулировать температуру воды и интенсивность ее подачи. Встроенные форсунки позволяют получать струю воды разной интенсивности и даже получить эффект присутствия в сауне, поскольку из форсунки может выделяться пар.
Если вы решили приобрести душевой бокс и наслаждаться вдоволь водными процедурами — не отказывайте себе в подобном удовольствии. Установку такого серьезного оборудования лучше доверить специалистам. Но если вы уверены, что справитесь со сборкой бокса самостоятельно — стоит попробовать.
Выбор модели душевой кабины
Выбирая модель душевой кабинки, обязательно проконсультируйтесь со специалистом: постарайтесь обрисовать планировку помещения, упомяните о своих вкусовых пристрастиях, коснитесь доступности цен на разные виды продукции. Опытный консультант поможет определиться с выбором.
Поскольку стандартные встраиваемые кабинки отличаются удивительным разнообразием форм, размеров, функциональных особенностей, нелишне совершить ознакомительный экскурс по рынку душевых кабин.
Квадратный вариант душевой кабины
Такую кабину удобно установить в углу помещения. Как правило, она достаточно просторна, устойчива и комфортна. Производители выпускают множество моделей с различными видами дверей. Одни кабинки могут быть оснащены раздвижными дверцами.
Другие — дверями, открывающимися в обе стороны, дверцами-купе или складывающимися дверями. Ширина входа тоже варьируется. Одна дверца может иметь ширину 50% от общей длины стенки, на которой она находится.
Дверца с двумя подвижными частями, открывающимися в обе стороны, дает общий вход в 66%. Впрочем, несмотря на функциональное удобство в диагональной модели имеется и огорчительный момент — в виде угла самой кабинки, который заметно ограничивает свободное пространство всего помещения.
Пятиугольный угловой вариант душевой кабины
Как понятно из самого названия, речь идет о кабинке пятиугольной формы. Такие кабины очень компактны. Они идеальны для установки в углу. Срезанный угловой выступ удачно компенсирует конструктивный недостаток квадратной модели.
Преимущество данного варианта еще и в том, что расположение дверцы можно выбрать по желанию. Она может быть традиционной, расположенной по центру. Или состоять из двух половинок, открывающихся в обе стороны — либо вовнутрь, либо наружу.
Прямоугольная душевая кабина фронтальной установки
Такая кабина может примыкать как к одной стене ванной комнаты или к двум, так и к трем. Внушительная длина кабинки позволяет установить ее между двумя стенами. То есть для монтажа такой модели достаточно установить всего одну стеклянную стенку — правда, достаточно длинную.
Кабина такой формы может быть оборудована дверцами любого типа: раздвижными дверями, дверями, открывающимися в обе стороны, дверями-купе или складывающимися. При прямоугольной форме кабины любой тип дверей будет удобен.
В этом весомое достоинство данной модели. Величина же внутрикабинного пространства позволяет установить не один, как обычно, а два душевых рассекателя — на противоположных сторонах прямоугольника.
Это вдвое увеличит пропускную способность кабины, что будет экономить время утреннего или вечернего туалета, скажем, в многодетной семье.
Функции
В стандартную комплектацию входит:
- поддон на каркасе (если поддон низкий, то каркас может не прилагаться);
- сифон с гофрой;
- верхний свет;
- полка;
- зеркало;
- ручной душ с креплением;
- контейнер для жидкого мыла.
Дорогие и новые модели, можно увидеть с дополнительными интересными начинками, такими как:
- гидромассаж;
- подсветка светодиодная (точечная и по периметру, управление с пульта, либо в ручном режиме);
- радио;
- принудительная вентиляция (включается и выключается автоматически);
- тропический душ;
- смеситель 3-х режимный (душ в средней ценовой категории);
- смеситель, имеющий до 25 режимов подачи воды (душ в высокой ценовой категории);
- распылитель воды;
- ароматерапия;
- парогенератор;
- телефонная связь;
- сенсорная панель управления;
- акустика;
- озонирование воздуха и другие.
Неисправности. Профилактика и ремонт
Со временем любая душевая кабина может начать протекать. Это зависит от того, насколько качественно были заделаны все швы. Частой причиной протекания может стать образование водяного налета, порча герметика и неправильный уход за душевым боксом. Чтобы этого избежать, необходимо поддерживать бокс в чистоте, а также своевременно обслуживать работу всех элементов.
Чтобы предупредить образование налета и поломку деталей душевой кабинки, необходимо установить фильтры очистки воды и своевременно их менять.
Ухаживать за душевым боксом следует регулярно. Не допускается обработка поверхности абразивными средствами. Консультанты магазинов сантехники рекомендуют очищать стеклянные и металлические поверхности специальными средствами для чистки душевых боксов.
Источник
Выбор сифонов
Все сифоны можно подразделить по двум основным признакам:
- по виду конструкции;
- по способу управления.
Конструкции сифонов
Сифон для низкой душевой кабины может быть одним из следующих видов:
- трубный. Такие устройства изготавливаются из жестких труб и могут иметь любую форму, например, в виде буквы S или U. Устройства отличаются невысокой стоимостью, отличной пропускной способностью и надежностью, однако для установки на низкие душевые кабины подходят крайне редко, так как имеют значительные размеры;
- гофрированный. В основе конструкции сифона располагаются не жесткие, а мягкие гофрированные трубы, позволяющие поместить конструкцию в малых пространствах. Основным отрицательным качеством устройства является небольшой срок службы, так как внутренняя поверхность гофрированного шланга не ровная и способствует быстрому загрязнению устройства.
- колбовый (бутылочный). Широкую популярность колбовые сифоны получили благодаря простоте конструкции и возможности периодического очищения. Для подключения душевых кабин подходят только специальные модели небольшой высоты.
Для душевых кабин с низкими поддонами преимущественно применяются колбовые сифоны, способные легко располагаться в ограниченном пространстве.
От использования гофрированных лучше воздержаться, так как они подвержены повреждению в местах изгиба. Их применение является целесообразным только при условии редкой эксплуатации душа или при крайне ограниченном бюджете.
Так, бутылочный сифон стоит около 1500-2000 рублей, а то время как стакан для душевой с гофрой можно приобрести за 150 рублей.
Способы управления сифона
По способу работы различают:
- устройства с ручным открывание. Обычные сифоны, дополнительно оснащенные крышкой. Если крышку закрыть, то вода в поддоне будет скапливаться. При открытой крышке вода будет сразу поступать в ;
- автоматическое оборудование. Сифоны-автоматы могут быть оснащены специальной ручкой, приводящей в действие крышку сливного отверстия или системой Click-Clack (крышка сливного отверстия открывается и закрывается от нажатия).
Сифоны-автоматы значительно удобнее в использовании, чем ручные устройства, однако стоимость такого оборудования выше.
Критерии подбора сифона
Сифон для душевой кабины с низким поддоном подбирается исходя из следующих факторов:
- диаметр сливного патрубка сифона должен соответствовать диаметру сливного отверстия. Только в этом случае при установке оборудования можно достигнуть полной . Размеры сливного отверстия можно узнать из технической документации к поддону или замерить самостоятельно. Стандартные устройства выпускаются с диаметром слива 52 мм или 62 мм. Сливы большего диаметра (90 мм) обычно устанавливают на поддоны с высоким бортиком;
- диаметр сливного патрубка влияет на пропускную способность сифона. Если диаметр менее 62 мм, то максимальная высота набранной в поддон воды должна быть менее 12 см. Для более широких сифонов показатель уровня воды может увеличиваться до 15 см. Если пропускная способность сифона не соответствует техническим характеристикам, то вода будет уходить слишком медленно, что не исключает переполнение поддона и затопление;
- низкие поддоны не оснащаются функцией перелива, поэтому следует выбирать оборудование с одним сливом;
- способы прочистки сифона. В продаже можно найти устройства, обладающие функцией самоочистки. Такое оборудование прослужит более длительный срок. Если сифон не может очищаться самостоятельно, то сливное отверстие рекомендуется защитить металлической решеткой, препятствующей засорению устройства;
- материал, применяемый для изготовления фиксирующего болта. Винт, соединяющий верхнюю и нижнюю части сифона, может изготавливаться из нержавейки и никелированной (хромированной) стали. Срок службы нержавейки значительно больше, чем стали. Данный фактор влияет на период эксплуатации самого устройства.
Сифон для низкого душевого поддона устанавливается в несколько этапов:
- сборка сифона;
- установка устройства на поддон;
- подключение оборудования к канализации.
Сборка
Для сборки сифона следует ознакомиться со схемой, приложенной к устройству при покупке.
Чтобы собрать оборудование для дальнейшей установки, надо:
- на корпус сифона надеть гайку и прокладку для подключения к поддону;
- труба, соединяющая корпус устройства и шланг, ведущий в канализацию, также оснащается гайками и уплотнительными кольцами;
- с одной стороны труба соединяется с корпусом сифона;
- с другой стороны подсоединяется сливной шланг.
Соединительные гайки должны быть затянуты прочно, но без особого усердия. Чрезмерная затяжка способна деформировать пластиковый корпус сифона.
Источник: https://teplotekcorp.ru/truby/montazh-dushevoj.html
Как собрать душевой бокс
Если вы купили бокс с разобранным поддоном, то сначала его необходимо собрать.
Пошаговые действия:
- Переверните вверх дном поддон так, чтобы удобно было установить крепежный элемент с ножками опоры. Корректировать высоту можно до такого уровня, пока все элементы не совпадут.
- Выполняем монтаж экрана поддона, хорошо затягивая крепежные элементы. Поджимаются все шурупы, оставить нужно только нижние ножки. Они будут регулироваться на месте.
- Поставить поддон на место и отрегулировать винтами. Проверить горизонтальность строительным уровнем. Если все сделано хорошо, то гайки можно окончательно затянуть.
- Собираем заднюю панель. В месте соединения поддона и панели необходимо нанести немного герметика и установить элемент. Выполнить совмещение креплений (крепеж марки М6 х 20). Окончательно их не поджимают, чтобы потом можно было регулировать панели.
- Собираем стеклянный каркас. Это самое ответственное задание в сборке душевого бокса, так как часто даже профессионалы разводят руками и недоумевают, откуда на стекле появилась трещина. Соедините горизонтальные направляющие с вертикальным профилем и зафиксируйте конструкцию саморезами. Обычно заводских отверстий хватает, но в некоторых случаях они могут не совпадать, и возникает необходимость в сверлении дополнительных отверстий для крепежного элемента.
- Осталось выполнить монтаж панелей. Тут нужно постараться, чтобы все отверстия совпали. Соединяются панели шурупами и дополнительно герметизируются силиконом. Затем необходимо навесить раздвижную конструкцию и отрегулировать ход панели.
- Потолочную панель следует соединить винтами, стыки обработать герметиком.
- Затем необходимо подключить душевой бокс к системе водоснабжения и канализации, проверить правильность соединения и хорошо закрутить все гайки.
- Остается самое главное – осторожно и не спеша необходимо осмотреть качество соединения каждого элемента. Чтобы проверить герметичность соединений, можно воспользоваться душевой лейкой. Если обнаружены отверстия, их необходимо дополнительно обработать герметиком и оставить на ночь (или день) для полного высыхания. Затем можно проверить все швы еще раз на герметичность.
Рейтинг лучших душевых кабин с низким поддоном
DETO V1215 — 74000 руб.
Изящный дизайн и широкие функциональные возможности помогли финской душевой кабине Deto V1215 возглавить призовой пьедестал. Эта прямоугольная конструкция оснащается поддоном из акрила высотой 15 см с металлическим каркасом.
Надежность изделию обеспечивают ударопрочные стекла с сечением 5 мм. Открывание и закрывание створки осуществляется с помощью раздвижного механизма. Экспертам пришлась по вкусу многофункциональность сантехнического оборудования.
Доступным для пользователей будет тропический душ (3 форсунки), водный массаж спины и вентиляция. Подобрать оптимальный режим поможет сенсорная панель управления. Комплектуется кабинка смесителем, встроенным радио, зеркалом, полочкой и сиденьем.
Пользователи отмечают простоту монтажа (регулируемые ножки), многофункциональность, отменное качество сборки.
Преимущества:
- прочный каркас;
- комфорт;
- стильный дизайн;
- много функций.
Недостатки:
- дорого стоит.
LUXUS 023D — 41300 руб.
Украшением ванной комнаты будет чешская душевая кабина Luxus 023D. Она не только привлекательно выглядит, но и позволяет насладиться широким набором водных процедур.
Модель неплохо оснащена, производитель установил гидромассаж для ног и спины, вертикальный душ, а также эффективную вентиляционную систему. Выбрать желаемый режим поможет электронная панель.
Кабинка имеет форму четверти круга (90х90 см), толстостенное стекло (6 мм) использовалось для изготовления раздвижных дверей. Эксперты остались довольны набором дополнительных аксессуаров.
Модель хорошо продается на российском рынке, что подтверждает большое количество отзывов в рунете. Владельцы довольны компактными размерами и многообразием функций. Но собирать кабинку самостоятельно они не рекомендуют.
Преимущества:
- эффектная внешность;
- доступная цена;
- много опций;
- компактность.
Недостатки:
- есть сложности с самостоятельной сборкой.
TIMO ILMA-101 — 70300 руб.
На бронзовой позиции подиума располагается душевая кабина из Финляндии Timo Ilma-101. Она имеет квадратную форму с длиной сторон 100 см.
Роль основы играет акриловый поддон. Эксперты выделили такие козыри модели, как усиленный каркас, а также наличие в комплекте сифона с гидрозатвором. Для изготовления раздвижных створок производитель применил закаленное стекло сечением 6 мм.
За комфорт во время мытья отвечают ручки, стеклянная полка и термостатический смеситель. Вся конструкция собрана аккуратно, двери закрываются герметично. Проанализировав отзывы в рунете, можно выделить несколько сильных сторон модели.
Это стильный дизайн, отменное качество, прочность конструкции и герметичность соединений. Из недостатков отмечается необходимость регулярного ухода, да и цена считается завышенной.
Преимущества:
- прочный каркас;
- стильный дизайн;
- достойная комплектация;
- отменное качество.
Недостатки:
- требуется регулярный уход.
PARLY TM911 — 17800 руб.
Самой популярной душевой кабиной без крыши в обзоре стала модель Parly TM911. Большое число отзывов в рунете является тому подтверждением. Одной из причин эксперты считают низкую стоимость. Кабину выбирают люди, не избалованные современными водными процедурами.
Сантехническое оборудование выполнено в виде четверти круга, оно оснащено поддоном из акрила. Стенки и раздвижные створки изготовлены из непрозрачного стекла сечением 4 мм. Не может похвастаться бюджетная модель ни оснащением, ни комплектацией.
Поэтому кабинка замыкает шестерку нашего обзора. Большинство потребителей довольны эксплуатационными свойствами душевой кабины Parly TM911 и качеством сборки. Им хватает внутреннего пространства, не вызывает сложностей чистка поверхностей. Минусом является бедная комплектация.
Преимущества:
- легко моется;
- удобные раздвижные двери;
- низкая цена;
- симпатичный дизайн.
Недостатки:
- бедная комплектация.
WELTWASSER MAINE-1 120/90 — 123500 руб.
Высококачественной сборкой и многофункциональностью выгодно выделяется среди аналогов душевая кабинка WELTWASSER Maine-1 120/90. Производитель из Германии не использовал силикон для обеспечения герметичности соединений.
Козырями модели эксперты считают прямоугольную форму поддона, изготовленного из искусственного мрамора. Инновационный материал обеспечивает конструкции роскошный вид и устойчивость. Массивно выглядят стенки и распашные двери, они сделаны из 8-миллиметрового стекла.
У кабины есть вертикальный гидромассаж и смеситель с термостатом. И профиль, и фурнитура имеет хромированное покрытие.
Хоть цена немецкого оборудования достаточно высока, оно пользуется популярностью у россиян. Пользователи ценят отменное качество, быстрое просушивание, хорошую комплектацию.
Преимущества:
- безсиликоновая сборка;
- распашная дверь;
- много функций;
- хорошая комплектация.
Недостатки:
- дорого стоит.
TRITON ОРИОН 2 — 25300 руб.
Оригинальный дизайном может похвастаться российская модель Triton Орион 2. Она выполнена в виде квадрата, двери и передние стекла оформлены в стиле «лен». Задние стенки в цвете графит создают эффектный контраст, на выбор потребителю предлагается и белое исполнение.
Все стеклянные панели имеют сечение 5 мм. Экспертам понравились длинные удобные ручки, они подходят для людей с любым ростом. Двери раздвигаются в стороны по специальным углублениям с желобами для стока воды.
В актив необходимо занести прочный поддон из акрила, он сделан по европейским стандартам. Для обеспечения безопасного принятия душа на дно нанесено антискользящее покрытие.
Владельцы довольны эффектным дизайном кабины и герметичностью соединений. Критикуют пользователи только маленькую полочку.
Преимущества:
- удобные ручки;
- оригинальный дизайн;
- антискользящее покрытие;
- низкая цена.
Недостатки:
- отсутствует гидромассаж;
- маленькая полочка.
Источник: https://simplerule.ru/luchshie-dushevye-kabiny-s-nizkim-poddonom-reyting/
Сборка рамы для установки дверей душевой кабины:
Вариант №2:
- Стрелкой указан верхний полукруглый профиль или имеется наклейка со словом «UP »
- Основное отличие этого варианта в методе скрепления профилей между собой.
- Скрепляются такими хитрыми китайскими зажимами — здесь на фото видно его.
- Необходимо его ослабить на три оборота, для этого находим шестигранник, который заботливые китайцы включили в комплект. Крутим, как всегда, против часовой стрелки.
- Соединяем их, как показано на фото.
Важно:
- Не перетянуть и совместить края . Если эти хреновины сломать — много печальки будет.
- Алгоритм сборки такой рамы, как и первого варианта, довольно прост.
- Если Вас смущает шаткость конструкции, то не стоит тянуть болты. Конструкция станет жесткой, когда все будет стоять на своем месте.
- Далее берем резиновые ограничители передвижения дверей, как показано на фото. Они могут быть и другими, но это не важно, главное — понять принцип, который я изложу в следующей информации.
- Иные «по виду» необходимо располагать полукруглой выемкой на встречу вектору перемещения дверей кабины, а по-простому — они смотрят в сторону двери.
- С одной стороны они ограничивают дверь, чтобы она не врезалась и не слетела с направляющих, а с другой стороны, чтобы двери закрывались. Предварительно продеваем в них короткие шурупы, чтобы они торчали из ограничителя на длину не более 3 мм.
- Если вы вставили не те шурупы, можно жестко накосячить и повредить передний профиль на самом видном месте. Выход — ищем шурупчики подходящей длины.
- Вкручиваем их в отверстия, которые находится на полукруглых профилях в углублении, где будут скользить ролики дверей.
- Кстати, о скольжении. Вот Вам мой мега совет — смажьте ролики солидолом или другой густой качественной смазкой. В люкс-кабинах всегда есть смазка. Ваши двери всегда будут открываться с непринужденной легкостью.
Ппц, как важно:
- Отверстия должны быть расположены синхронно на обоих профилях. Это можно проверить даже при помощи обычной рулетки.
- Если китайцы просверлили иначе — пока ничего не делайте с этим. Потом, когда дело дойдет до установки дверей, я Вас сориентирую. Шуруповерт можно поставить на «единицу» или вообще лучше закрутить их отверткой.
- Из-за этого косячка, который пропускает неопытный сборщик, слетают двери с душевой кабины.
- А клиентам говориться следующее: — «Херовую кабину Вы купили, я не знаю в чем тут дело!»
Сборка стенок душевой кабины — ничего сложного, главное — терпение и аккуратность… .
- Начинаем комплектовать стенки — ограждения душевой кабины. Обычно там находятся — лейка, держатель, зеркало, полка и т.д.
- Самое главное правило для новичка — примеряем, думаем, закручиваем, не перетягиваем
. Это правило всегда меня выручает, когда попадается незнакомая конфигурация душевой кабины.


