Назначение и характеристики
Если большинство людей знают, что собой представляет шкаф-купе, понятие о профилях имеют немногие. К ним относятся направляющие, ручки и окантовки дверей. Основным достоинством шкафа-купе является плавное открывание и закрывание створок, а направляющие играют важнейшую роль в обеспечении надежного функционирования всего механизма, так как именно по ним как по рельсам двигаются полотна. Бесшумность хода осуществляется за счет работы роликов или шариков вместе с доводчиками.
В комплект мебели входят и другие элементы, отвечающие за прочность и надежность конструкции. К ним относятся силиконовые уплотнители и щетки, стопоры и фиксаторы, крепежные винты и шурупы. Все эти детали должны быть качественными.
Один-единственный ненадежный элемент конструкции может привести к выходу из строя всего механизма.
Выбирая профили для шкафа-купе, потребителю надо обратить внимание на следующие характеристики:
- Стенки должны быть примерно от 1 мм до 1,6 мм толщиной. Узкий размер полотна может привести к поломке или деформации изделия.
- Долгий срок службы. Он определяется количеством открываний и закрываний дверей, указываемых производителем. Примерно 20 лет должен прослужить шкаф, рассчитанный на 60–70 тысяч циклов.
Принцип работы стопора
Благодаря простой конструкции, стопор легко входит в углубление направляющей. Два пружинящих конца упираются в нужном месте, и для дверных роликов появляется небольшое углубление, которое и определяет местонахождение двери. Чтобы дверь продвинулась далее по колее, ее нужно всего лишь чуть сильнее дернуть.
Механизм этой раздвижной системы помогает двери плавно закрываться и зафиксироваться в закрытом положении.
Виды
Встречается 4 вида раздвижных систем:
- Подвесные. Нагрузка приходится на верхние подвижные элементы. Надежный механизм, но со временем двери могут расшататься. Во избежание этого желательно установить стабилизаторы.
- Опорные. Основным компонентом раздвижной конструкции является нижний профиль. Верхняя часть двери только фиксируется, наклон легко регулируется с помощью роликов. Минусом можно считать запыление и загрязнение полозьев, приводящее к преждевременному износу элементов. Необходима регулярная чистка или установка ленточных щеток.
- Универсальные. Встречаются довольно часто, выполняют функции двух других систем.
- Компланарные. Современные механизмы, отличающиеся высоким качеством и отменными функциональными возможностями. Особенность системы состоит в том, что дверь сначала выдвигается вперед и потом в сторону.
По месту применения различают шесть видов направляющих, которые призваны обеспечить надежное функционирование дверей. К ним относятся:
- горизонтальная нижняя планка;
- вертикальный профиль;
- верхняя направляющая;
- нижняя направляющая;
- верхняя планка;
- соединительный профиль.
Подвесная
Опорная
Универсальная
Компланарная
Горизонтальная нижняя планка
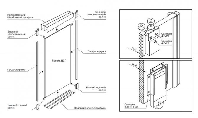
Имеет симметричные формы. На поперечном срезе профиль напоминает букву «Н». Основная функция заключается в фиксации роликов. Планка также прикрывает подвижные элементы, придавая конструкции эстетичный вид. Монтируется на торец нижнего среза двери при помощи саморезов. Толщина профиля — примерно 12,5–14,5 мм, длина — около 5,4 м. Возможный недостаток горизонтальной нижней планки — низкое качество из-за несоблюдения стандартов производства изготовителем.
Вертикальный профиль
Выполняет важную функцию соединения дверного полотна с другими частями раздвижного механизма. Служит элементом обрамления двери с обеих сторон. На рынке мебельных комплектующих представлены различные формы, размеры таких деталей. Наибольшей популярностью пользуются профили ручки для шкафов-купе 16 мм.
Вертикальный профиль бывает двух видов:
- Открытым. Отличается эстетичным дизайном и используется как ручка. Имеет асимметричный изгиб в форме буквы «С», считается самым популярным.
- Закрытым. Обладает симметричной формой в виде буквы «Н», пользуется большим спросом.
Недостатки могут быть следующего характера:
- Несоответствие размеров вертикальных ободков параметрам дверей. Чем она больше и массивнее, тем толще должны быть простенки профиля.
- Нарушение производителем требований стандарта в целях экономии материала.
Открытый
Закрытый
Верхняя направляющая
Эта деталь раздвижных дверей представляет собой профиль с выемками для свободного хода колесиков. Ее закрепляют к потолку или стене, используя брусья из дерева или металлические угольники. Верхняя направляющая должна быть изготовлена из прочного материала. Много плюсов у алюминия — он долговечен, экологичен и обеспечивает плавное движение роликов.
Фурнитуру применяют в подвесных системах, где на нее приходится основная нагрузка. В таких механизмах не используются напольные направляющие. По этой причине двери вибрируют и со временем расшатываются. Профиль для шкафа может иметь как прямую, так и изогнутую форму.
Верхние направляющие бывают длиной от 2 до 6 метров. Встречаются модификации с разными сечениями: 20 х 32 мм, 29 х 31 мм, 30 х 32 мм, 34 х 37,7 мм, 35 х 32 мм. Параметры выбираются в зависимости от размеров шкафов-купе и дверных полотен. Недостаток — как и другие виды направляющих, скапливают пыль внутри.
Нижняя направляющая
Этот профиль также предназначен для дверей шкафа-купе. Нижняя направляющая находится под постоянной нагрузкой, так как она является опорной. Для крепления к полу используются саморезы или двусторонний скотч.
В зависимости от количества дверей нижние направляющие имеют от 1 до 3 полозьев. Для удобства одинарный профиль принято утоплять и выравнивать с полом. В этом случае он не станет выступать наружу и прибавит эстетики.
Нижние направляющие имеют некоторые преимущества:
- в отличие от верхних они обеспечивают плавное движение дверного полотна по роликам;
- являются более долговечными.
Недостатки:
- частое засорение полозьев, необходимость регулярной чистки;
- преждевременный износ при накоплении грязи и пыли.
Нижние направляющие выпускаются длиной 5,4 м по 10 штук в упаковке. Одинарные профили имеют следующие популярные размеры: ширина — 24,8 мм, высота — 7,4 мм. Двойные — соответственно 62,8 и 8 мм.
Верхняя планка
Крепится вверху двери и соединяет ее с роликами. Она представляет собой профиль, состоящий из 1, 2 или 3 квадратных или прямоугольных секций. Наиболее распространенным является размер 14,5 х 21 мм. Длина стандартная — 5,4 м.
Соединительный профиль
Его еще называют межсекционным. Находит применение в комбинированных шкафах-купе как элемент, соединяющий разные материалы. Встречаются такие детали волнистых, прямых, гнутых и даже зигзагообразных форм. Профили рассчитаны на одну дверь, поэтому по размерам уступают другим типам комплектующих. Популярными считаются параметры 14,5 х 25 мм и 12,4 х 21,5 мм.
Высота дверей
Все расчеты опираются на схемы и данные от производителей конкретной раздвижной системы.
Поскольку практически у всех популярных роликовых раздвижных систем предполагается регулировка верхних и нижних роликов, возможны некоторые усреднения и округления.
Чтобы рассчитать высоту двери купе, обычно отнимают 40 мм от внутреннего размера ниши. То есть формула расчета будет выглядеть так: Hпр-40.
Если отнять меньше (например, 30 мм), то двери будет очень сложно вставить в направляющие и отрегулировать плавность хода. Если вычесть больше, то створки могут просто выпадать, поскольку высоты регулировки ролика не будет хватать для обеспечения устойчивости скольжения.
Таким образом, расчет для безрамных раздвижных систем (SKM, срд-1) на этом заканчивается. Для купе типа Aristo, Raum+, Commander и других требуется рассчитать составные части: длину верхнего, нижнего и боковых профилей, габариты внутренней вставки.
Материал изготовления
Для изготовления профилей для шкафов-купе используются различные материалы:
- сталь;
- алюминий;
- пластик;
- полимеры.
Безоговорочным лидером в этом списке является алюминий. Он дороже своих конкурентов, но имеет ряд существенных преимуществ:
- не боится влаги, температурных перепадов, коррозии;
- отличается гибкостью, легко поддается обработке;
- несмотря на большую толщину простенков, профили из этого материала гораздо легче.
Большинство потребителей останавливают свой выбор на алюминиевых профилях для установки шкафов-купе, так как они зарекомендовали себя с лучшей стороны. Этот материал совершенно безвреден, имеет привлекательный внешний вид. Если деталь изготовлена строго по стандартам, найти минусы почти нереально.
Стальной профиль занимает одну из ведущих позиций среди материалов, используемых в изготовлении шкафов-купе. Он обладает важными достоинствами:
- прочностью, устойчивостью к механическим воздействиям;
- невысокой стоимостью в сравнении с алюминием.
Есть у стали и минусы:
- подверженность коррозии, приводящая к разрушению металла;
- наличие скрытых дефектов;
- ограниченные возможности придания профилю оригинальной текстуры.
Несмотря на эти недостатки, сталь широко используется при установке шкафов-купе в тех местах, где нет повышенной влажности. Такая мебель удачно вписывается в интерьер зала, спальни и даже детской.
Пластик и полимерные материалы не выдерживают конкуренции и используются редко.
Алюминий
Сталь
Пластик
Галерея мебели с раздвижными дверьми
Методы окрашивания
Существует несколько способов декорирования профилей. Основными считаются:
- Анодирование. Суть этого метода заключается в создании оксидного слоя. Он придает профилю красивый вид, предотвращает стирание и потускнение, делает материал водостойким, укрепляет его свойства.
- Кварцевание. Используется в основном как вспомогательный метод. При помощи щеточной шлифовки тщательно очищают деталь.
- Катафорез. Многоразовая обработка профиля химическими средствами обеспечивает идеальное покрытие без пор, неровностей. После таких процедур поверхность делается гладкой, блестящей.
- Окутывание в ПВХ. Позволяет создавать различные текстуры, повышает устойчивость к механическим повреждениям.
- Шпонирование. Профиль покрывается древесным слоем. Идеально подходит для придания изделию текстуры различных пород. На готовый шпон наносится лак.
Анодирование
Катафорез
Пленка ПВХ
Шпонирование
Используем двухсторонний скотч
Этот вариант гораздо проще первого. Сначала тщательно очищаем поверхность, на которую будет приклеен скотч, от грязи, пыли, жира и возможных заусенец. Зачищаем аккуратно, чтобы случайно не стереть те метки, которые были нанесены карандашом. Оголяем липкую сторону скотча и прикладываем направляющую к полу в точном соответствии с разметкой. Прижимаем элемент по всей длине на некоторое время.
Перед тем, как установить двери в шкаф-купе, точнее при выборе способа монтажа нижнего направляющего элемента, необходимо помнить важный нюанс. Если необходимо сохранить покрытие, то есть не хочется сверлить в нём отверстия, можно использовать скотч, но на его приклеивание есть только одна попытка, поскольку хороший материал будет невозможно оторвать от поверхности. Будьте предельно осторожны и внимательны, а также не ошибайтесь при разметке.
Критерии выбора
В связи с огромной популярностью шкафов-купе на рынке представлена фурнитура, отвечающая разным вкусам. При выборе стоит обратить внимание на материал изготовления, размеры, цвет. Большое значение имеет стоимость продукции — качественный товар не может быть приобретен за бесценок. Если выбран недорогой стальной профиль, он, скорее, окрашен не очень качественной краской, поэтому покрытие потеряет изначальный вид очень скоро.
Для определения оптимального размера профиля нужно учитывать следующие параметры:
- габариты шкафа;
- ширину полотна створки;
- размеры разделителей;
- длину стыковочных деталей.
В таблице описаны лучшие производители, у которых можно найти любой цвет профиля и подобрать изделия высокого качества по приемлемой стоимости.
| Фирма | Характеристики |
| RIAL.PRO | |
| Аристо | Профили из алюминия анодированы и покрыты пленкой ПВХ. Способны выдержать до 16 кг веса. Можно выбрать из 20 вариантов цветов |
| Премиал | Выпускается 5 видов алюминиевых профилей. Горизонтальные планки усилены. При изготовлении используется 5 основных способов декорирования, к примеру, покрытие серебром, окрашивание в белый глянец. Возможны различные имитации пород дерева. |
| Версаль | Симметричные и асимметричные профили российского производства для классических шкафов-купе с зеркальным фасадом. Детали выдерживают вес до 50 кг. Длина изделий — 6,2 м. Широкий выбор цветов. |
На рынке представлена как отечественная продукция, так и европейская. Увы, направляющие иностранного производства не могут похвастаться низкой стоимостью, поэтому потребители не спешат их приобретать. Тем, кто хочет сэкономить, рекомендуется выбирать фурнитуру проверенных отечественных компаний.
RIAL.PRO
Аристо
Премиал
Версаль
Размеры внутреннего наполнения дверей купе
Алюминиевый и стальной профиль рассчитан под тонкую вставку толщиной 8-10 мм.
Стекло и зеркало толщиной 4-5 мм обрамляется уплотнителем. Поэтому нужно учитывать толщину уплотнителя при расчетах (порядка 1,5-2 мм с каждой стороны).
ЛДСП, МДФ толщиной 16-18 мм также можно использовать в качестве вставки. Но его требуется фрезеровать по периметру с внутренней стороны до толщины 8-10 мм.
Принцип расчета вставки предельно прост: измеряется толщина обрамления (им служит профиль или профиль+уплотнитель) и вычитается от габаритов вычисленной выше двери с размерами Hдв и Lдв.
Внутренняя вставка раздвижной створки может быть наборной. При этом учитывается толщина делителя.
Для алюминиевой системы Aristo можно выделить следующие формулы для расчета ширины (Lв) и высоты (Hв) вставки:
- Фрезерованная вставка ЛДСП толщиной 10 мм: — 57 мм от высоты двери. Ширина вставки для С профиля меньше ширины двери на 36 мм, для H профиля – на 54 мм.
- Стандартная вставка толщиной 8 мм: — 59 мм от высоты двери.
- Стекло/зеркало толщиной 4 мм: -60 мм от высоты двери.
Формулы для расчета вставки в табличной форме.
Иногда в описаниях расчетов рекомендуется отнимать на уплотнитель не 3 мм, а 4 мм. Ошибки тут нет. Проверьте, как получается у вас на небольшом образце, и отнимайте столько, сколько нужно.
Как рассчитать размеры сборной вставки
В большинстве случаев дизайн створок купе предполагает сборную вставку, с горизонтальными и вертикальными делителями. Сочетаться могут как разноплановые материалы (ЛДСП+стекло, акрил+зеркало), так и одноплановые (МДФ+МДФ).
Расчет внутреннего наполнения абсолютно аналогичен. Просто учитывается толщина алюминиевого делителя (как правило, — 2 мм) и уплотнителя для вставок из стекла и зеркал.




