Приятно посетить благоустроенную баню, в которой не только качественно сложена каменка, обеспечивающая легкий пар, но и грамотно продуманы системы отопления и водоснабжения. Если в печи установлен теплообменник, то в моечной всегда будет теплая вода, а при условии подключенного к теплообменнику радиатора, даже в зимнюю стужу в бане будет максимально тепло и комфортно.
Печь для бани с теплообменником для воды
Чем и как соединять внешний бак с теплообменником
Расчет площади теплообменника
Печь для бани с теплообменником для отопления должна давать 5 кВт тепла при стандартной площади для обычной семьи. Рассчитывая самостоятельно размеры элементов системы, исходят из того, что 1 м2 площади теплообменника дает около 9 кВт.
Рекомендуется делать размеры с большим запасом, так как на эффективность системы влияет расположение и форма котла, качество топлива.
Проектируя систему для получения горячей воды (с выносным баком) следует учитывать, что сама емкость будет дополнительно обогревать помещение.
Схема подключения теплообменника в бане проста для печей заводского производства в соответствующих моделях. Однако для людей, имеющих навыки сварки, вполне по силам собрать систему самостоятельно и для кирпичной печи. Для системы с естественной циркуляцией понадобятся трубы, фитинги, фурнитура (2 крана), бак для воды.
Металлические листы нужны в случае, если бак для воды или теплообменник предусмотрено сваривать самостоятельно (в форме куба или параллелепипеда).
Особенности и функции теплообменника
Прежде чем рассматривать основные моменты изготовления и монтажа теплообменника для горячей воды, абсолютно не лишним будет узнать, что же собой представляет этот агрегат и для чего он нужен.
Теплообменник – техническое устройство, соединяющее между собой два теплоносителя: холодный и горячий. Как правило, он имеет вид обычной трубной конструкции. Между носителями беспрерывно осуществляется передача тепла – от холодного к горячему, благодаря чему дом и обеспечивается горячей водой. Причем у теплообменника нет собственного источника тепла – он использует энергию, поступающую от системы отопления.
Таким образом, главная функция агрегата – подогрев холодной воды и получение на выходе горячей. Эффективность выполнения этой функции зависит от трех факторов:
- температурная разница между двумя теплоносителями;
- габариты теплообменника и, следовательно, площадь контакта носителей;
- материал, из которого изготовлен теплообменник.

Установка и подключение
Теплообменник в топке удерживается кирпичной кладкой печи, в дымоходе прибор держится на отводах. Отводы желательно выполнять как можно меньшей длины. Главное правило монтажа подобной системы: никаких горизонтальных участков.
Перед подключением систему обязательно нужно проверить холодной водой. Для этого система заполняется водой и проводится осмотр каждого участка трубопровода. Любая дырочка со временем превратится в серьезную течь, поэтому лучше устранить все проблемы на этапе монтажа. Если финансовые возможности позволяют, желательно установить циркуляционный насос с простейшей автоматикой для включения и выключения циркуляции.
Как видно, ничего сложного в создании теплообменника в баню своими руками – нет Главное, правильно выбрать какой теплообменник необходим для каждого конкретного случая, исходя из габаритов помещения и финансового бюджета стройки
Функции и виды теплообменника
Теплообменник для системы отопления частного дома чаще всего предусматривает устройство, которое имеет поверхностный контакт. В таком случае имеется теплообменник, который подогревается изнутри и через поверхность. Чаще всего это металл, который и осуществляет обогрев воздуха вокруг.
Принцип работы наиболее полно раскрывается в отопительной системе, которая имеет газовые, твердотопливные или электрические котлы. От нагревательного устройства по всей системе отопления направляется горячая вода. Она циркулирует по трубам и теплоносителям, которые имеют изогнутую форму. Такая конфигурация задерживает воду, как следует прогревая ее. В конце пути холодная вода снова поступает к котлу, где заново начинает нагреваться.
Еще одним вариантом может стать классическая печь. Она довольно эффективно справляется со своей функцией, однако предназначена только для маленьких помещений. Если есть необходимость отопить коттедж, то такого теплообменника будет недостаточно. Такое устройство будет актуальным в каком-то маленьком домике или же бане. Чтобы превратить печь в полноценный отопительный котел, необходимо предусмотреть для нее водяной теплообменник. В таком случае появляется возможность отапливать даже 2-этажный коттедж при помощи каменной печи. Что касается размеров теплообменников, то они зависят от размеров топливной камеры отопительного устройства.
Теплообменник для отопления лучше всего выбирать водяной. Связано это с тем, что вода значительно лучше проводит тепло, чем воздух. Ее способность повысить температуру помещения значительно выше, чем у воздушных теплообменников.
Все отопительные системы, которые изготавливаются в заводских условиях, имеют в своем оснащении теплообменники. Их устройство достаточно сложно, сделать их своими руками практически невозможно. Именно поэтому придется прибегать к более простым вариантам. Теплообменник изготавливается в виде змеевика и имеет внутри множество поперечных пластин, которые увеличивают обогреваемую площадь. Именно такие конструкции используются для отопления частного дома.
Что важно учесть при выборе правильной модели
Есть несколько факторов, от которых зависит интенсивность прогрева помещения и качество пара в парилке. Именно на них стоит ориентироваться при поиске правильной печки:
Мощность. Это главный критерий выбора любого отопительного прибора. Мощность должна быть достаточной для хорошего прогрева, но не чрезмерной, чтобы не создавать лишних проблем. При расчете ориентируются на объем помещения. Для нагрева 1 м.куб. требуется 1 кВт мощности.
Вид топлива. Необходимо выбирать такое топливо, которое всегда доступно в местности, где расположена баня. В идеале оно должно быть еще и дешевым. В газифицированных районах с этим нет проблем, но все же многие владельцы бань выбирают твердотопливные модели. Это дань традиции. Можно купить конструкцию, которая будет рассчитана одновременно на газ и дрова.
Способ установки. От расположения печки зависит тип ее растопки – изнутри или снаружи парилки. Модель с обычным топочным каналом подойдет, если растапливать будут из парилки. Если же планируется растопка из предбанника или комнаты отдыха, то лучше выбрать конструкцию с удлиненным топочным каналом.
Дизайн. Модель должна быть удобной в эксплуатации и вписываться в общую стилистику оформления бани. Внешний вид печки нельзя отнести к определяющим факторам выбора, но все-таки он важен, т.к. любому владельцу бани хочется оборудовать для себя уютное место отдыха и релакса.
Объем и тип водяного бака. Перед покупкой следует рассчитать желаемый объем резервуара для воды и место его расположения относительно печи. Для каждого конкретного помещения следует выбирать модель, ориентируясь на планировку. В некоторых случаях наилучшим решением будет приобретение печки со встроенным теплообменником.
Схема конструкции печи со встроенным баком
Каким может быть резервуар для воды
При покупке банной печи с баком для воды обращают внимание на его расположение и способ подключения. Различают такие основные виды резервуаров:. Навесной
Расположен на корпусе модели, нагревается по мере прогрева стенок печки. Есть и дополнительная выгода: за счет резервуара увеличивается площадь нагреваемой поверхности. Это самый простой вариант в плане монтажа, однако организовать душ с таким баком не получится, а вода греется слишком быстро
Навесной. Расположен на корпусе модели, нагревается по мере прогрева стенок печки. Есть и дополнительная выгода: за счет резервуара увеличивается площадь нагреваемой поверхности. Это самый простой вариант в плане монтажа, однако организовать душ с таким баком не получится, а вода греется слишком быстро.
Наставной. Резервуар с водой может быть установлен прямо на топочной камере. Это далеко не всегда удобно. Вода может нагреваться гораздо раньше, чем воздух в помещении. Кроме того, материал бака может быстро прогореть, а швы разойтись.
На трубе дымохода. Бак такого типа по внешнему виду напоминает самовар, поэтому конструкции нередко называют самоварными. Резервуар крепят на трубе, а вода в нем прогревается с помощью горячих газов, поднимающихся вверх. Это позволяет более рационально использовать топливо. По форме резервуары бывают квадратными или круглыми. Зачастую их размещают так, чтобы они служили проходным узлом на кровлю.
Выносной. Идеальный вариант для бань, где печь стоит в парилке, а бак следует расположить в моечной. Вода нагревается с помощью встроенного теплообменника. Благодаря особенностям конструкции такого резервуара исключена ситуация, когда вода уже закипает, а помещение еще недостаточно прогрелось. К минусам стоит отнести дороговизну и сложность монтажа по сравнению с другими видами баков.
Модель «Варвара» с навесным баком
Второй этап: подключение к отопительному водяному контуру
Чтобы выяснить, как подсоединить газовый котел к отоплению, следует разобраться, где у него находятся патрубки, от которых идёт выход к отопительному контуру. Почти все модели устроены идентично. В нижней части агрегата (обычно, в центре), есть патрубок для газопровода, а справа и слева от него — патрубки для подсоединения к водопроводной сети. Ближе к торцовой части имеются выходы для подсоединения водяного контура: обратки и подачи теплоносителя к радиаторам.
Производители газовых котлов предупреждают об опасности попадания мелкого сора в систему. Это может произойти в случае, когда вода в системе окажется загрязнённой. Если это допустить, газовый агрегат может выйти рабочего состояния. Есть простой выход: установить на патрубке обратного водопровода фильтр грубой очистки. Он позволит существенно увеличить «жизнь» котла и повысит его производительность. Когда фильтр грубой очистки уже смонтирован перед водомером, то ставить его перед газовым котлом не нужно.
Поэтому перед тем, как подключить двухконтурный газовый котел к отоплению, нужно заблаговременно приобрести необходимые фильтры.
При монтаже котла предусматривают обязательную установку отсекающих вентилей. Водопроводную арматуру ставят на трубы подачи воды в систему и на обратки. Без этих устройств выполнять ремонтные работы будет очень сложно. Если не предусмотреть отсекающие краны, то при устранении неисправности в системе, оставшийся в трубах воздух заблокирует циркуляцию теплоносителя. Как следствие — некачественный прогрев радиаторов и выход их строя. То есть экономить на вентилях не целесообразно.
Общие принципы установки системы
Есть несколько принципов, которые помогут вам сделать качественный и долговечный теплообменник:
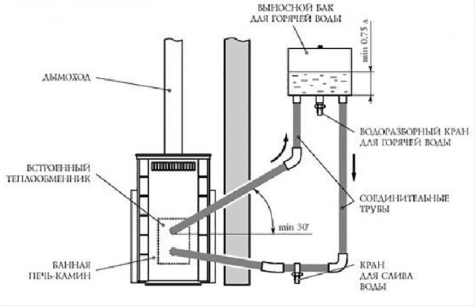
- Первое правило монтажа любого трубопровода это соблюдение углов наклона. Даже, если в системе есть циркуляционный насос, проще сделать правильные углы наклона труб, чем потом мучатся со спуском системы и заменой насоса, который слишком быстро истратил свой рабочий ресурс. Трубы, подающие воду в бак с теплой водой прокладываются под углом в 30 градусов в сторону теплообменника. Трубы, отводящие воду из бака обратно в теплообменник выполнятся с уклоном примерно 5-10 градусов в сторону теплообменника.
- Нужно позаботится о спуске системы. В нижней точке предусматривается спускной кран, который необходим для спуска системы на зимний период, если пользоваться баней владелец не планирует.
- Проверяйте места соединений пластиковых труб с теплообменником. Пластиковые трубы при соприкосновении с горячими поверхностями может и не оплавятся, но деформируются точно. Поэтому подвод и отвод воды к теплообменнику лучше выполнять из металлических труб с переходниками на пластик.
- При необходимости, циркуляционный насос устанавливается прямо на трубу. Важно сделать так, чтобы была возможность замены и промывки насоса без демонтажа всей системы. Поэтому делается в двух местах устанавливаются тройники, через которые подключается насос. При необходимости линия с насосом перекрывается, насос снимается и выполняются все требуемые работы.
- После монтажа всей системы, не забудьте проверить ее холодной водой. Это позволит выявить течи и исправить огрехи до начала работы.

Четвертый этап: подключение агрегата к газопроводу
Подключение к газопроводу — чрезвычайно ответственное дело. Малейшая ошибка может обойтись очень дорого. Если не качественно выполнить монтажные работы, то могут возникнуть серьёзные аварийные ситуации, которые приведут к отравлению газом или взрыву. Мелочей при подключении котла к газопроводу быть не должно.
Первый шаг — это соединение патрубка от котла к ответвлению газовой трубы. На газовой трубе при этом обязательно должен быть отсекающий кран. На него так же устанавливают специальный фильтр для отопления.
Соединяя газопровод с котлом, нужно внимательно проследить за тем, чтобы все стыки были герметичными. Здесь для герметизации нельзя применять ФУМ ленту или уплотнительную нить, которые не обеспечивают качественной изоляции. Рекомендовано применение пакли и краски.
Резиновые шланги для подключения газовых котлов к газопроводу запрещены. Резина может утратить эксплуатационные свойства (потрескаться), это неминуемо приведёт к опасной утечке газа. К патрубку агрегата шланги прикрепляют с использованием накидных гаек и уплотнительных паронитовых прокладок. Уплотнители здесь обязательны, ведь именно они позволят добиться достаточной герметизации соединения.
Что касается подключения котла Бакси к системе отопления, то тут без помощи специалистов не обойтись. В данном случае самостоятельно можно выполнить только начальные этапы по его монтажу. Котёл будет работать долго и эффективно, когда его подключение будет выполнено профессионально.
Разновидности приборов в картинках
Фото 2. Наружный теплообменник, устанавливаемый на трубу банной печи. Устройство наполняется водой.
Фото 3. Наружный проточный теплообменник для печи, сделанный из меди. Устройство надевается на дымоход.
Фото 4. Наружный проточный теплообменник для банной печи. При помощи труб устройство соединяется с баком для воды.
Как сделать теплообменники своими руками
Теплообменник — устройство, предназначенное для эффективной передачи тепла от одного теплоносителя другому.
Такой процесс может быть осуществлён несколько раз в одной системе, ведь частным случаем теплообменника является и радиатор отопления. и газовый или электрический котёл.
Наиболее распространённая модель теплообменника, используемая в системе отопления, представляет собой 2 металлические ёмкости, которые подобно матрёшке находятся одна в другой, и через металлическую стенку производят передачу тепла.
Достоинства такого механизма заключается в том, что благодаря герметичной конструкции не происходит взаимное перемешивание однородных сред, а при использовании разных по физическим свойствам теплоносителей не происходит перемешивания.
Расположение: на дымоходе, внутри топливника, на боковой стенке
Внутренние конструкции располагаются внутри топливника печи по его контуру таким образом, чтобы они не находились в зоне максимальной температуры пламени и отходящих от него раскаленных газов, чтобы устройство прослужило как можно дольше.
Внешние агрегаты нагрева устанавливается на боковой стенке печки так, чтобы они не мешали пользованию печью.
Наружные, в том числе проточные (экономайзеры), устанавливаются непосредственно на трубу дымохода, опоясывая ее по кругу.
Теплообменник что это
Теплообменник — это полая емкость, заполненная водой, вмонтированная в конструкцию печи. Теплообменник соединяется с системой труб и/или баков, по которым циркулирует вода, разогретая во время топки печи.
В зависимости от конструкции, движение воды по системе осуществляется естественным способом или принудительным (с помощью насоса). Принцип работы теплообменника банной печи в том, что разогретая вода поступает в отопительные батареи и бак для душа, а холодная перетекает в теплообменник и нагревается. Процесс происходит в течение всего времени топки.
Существует несколько конструкций теплообменников:
- Внутренний теплообменник — емкость с водой для нагрева помещается в топку печи. Конструкция емкости может быть любой — в виде бака, образующего одну стену топки или змеевика из труб, опоясывающего топочное отделение.
- Внешний теплообменник — модуль помещают снаружи печи, обычно он опоясывает печную трубу, нагреваясь от температуры горячих газов, выводимых через трубу в процессе горения топлива в печке.
Вода, циркулирующая в системе, может использоваться как для отопления помещения, так и для нагрева воды для мытья. Конструктивно печь для бани с теплообменником для воды не отличается от обычной печки с местным водяным отоплением.
Для монтажа системы с двумя функциями (обогрева помещения и получения горячей воды) придется предусмотреть бак для воды и правильно рассчитать протяженность и диаметр труб для оптимальной работы системы.
Наибольший КПД имеет система, в которой соблюдены условия:
- Протяженность труб не более 3 м;
- Диметр труб больше 1 дюйма — при маленьком просвете жидкость не сможет нормально циркулировать без помощи насоса;
- Открытая система нагрева воды — в расширительный бак организован доступ воздуха.
Такая конструкция не потребует дополнительных затрат энергии (в том числе электрической – для насоса) и обеспечит обогрев помещения и горячую воду.
Правила безопасной эксплуатации
Если этого не сделать, в лучшем случае в разогретых трубах малое количество воды будет моментально превращаться в пар, печь будет «плеваться» паром, пыхтеть и трещать. В худшем – трубы поведёт и нарушится вся работа.
Второе не менее важное правило – зимой сливать воду из системы после каждого похода в баню. В противном случае вода перемёрзнет и может порвать трубы
Даже маленькая пробочка льда будет препятствовать циркуляции.
Удобно, когда бак подключён к водопроводу, а уровень поддерживается поплавком. Однако при такой схеме, в бане не получится слить воду – систему можно реализовать только в тёплых помещениях.
Теплообменник и выносной бак помогут избежать ситуации, когда ещё не прогретая баня уже заполняется сырым паром. Устройство его незатейливо, поддаётся самоделу. При этом можно и сэкономить на покупке лишнего прибора и обогреть дополнительное помещение.
Закрепление выносного бака и монтаж теплообменника
Выносной бак для бани
Для банной печи достаточно бака объемом 80-120 литров. Эту емкость необходимо навесить на стенку бани так, чтобы уровень бака был выше печи.
Схема подключения бака и установки печи с теплообменником
Схема подключения
Шаг 1. Выбираем место для крепления бака. Это может быть как парная, так и душевая за смежной стенкой. Высоту крепления определяем, пользуясь рекомендациями по уклону подводящих/отводящих труб.
Схема расположения печи и бака
Шаг 2. Большинство опытных мастеров не рекомендуют навешивать выносной бак непосредственно на деревянную стенку бани. Поэтому делаем замер ширины бака, распиливаем рейку на несколько участков соответствующего размера, крепим отрезки на стенку бани гвоздями.
Шаг 3. У бака должны быть предусмотрены технологические отверстия для крепления его к стене. Закрепляем бак саморезами или дюбелями, проверяя горизонтальность и вертикальность. Дополнительно укрепить конструкцию можно кронштейнами, зафиксировав их под дном бака.
Кронштейны под дном бака
Шаг 4. У бака для воды выносного есть три или четыре патрубка. Два из них предназначены для подключения к теплообменнику, третий – для заполнения бака водой (его может и не быть), через четвертый горячая вода подается потребителям. К патрубку, через который бак будет заполняться водой, подключается обратный клапан. Если система открытая (вода добавляется вручную через открытую крышку бака), то обратный предохранительный клапан не нужен.
К патрубку, из которого будет вытекать подогретая вода, подключается кран с душевым шлангом или без такового.
Шаг 5. Осталось два патрубка, к которым следует подсоединить гофрированные стальные трубы или смонтировать медную сеть. Соединения производятся фитингами. Допустимо использовать металлопластиковые трубы, соединив их переходниками с патрубками бака и теплообменника. Все резьбовые соединения уплотняются нитью-герметиком.
Гибкая подводка воды
Цены на металлопластиковые трубы
металлопластиковые трубы
Шаг 6. На трубопровод, который ведет от бака к теплообменнику, подключается кран для слива воды из системы. Операцию слива жидкости нужно будет выполнять каждый раз после завершения банных процедур, в противном случае в период холодов вода может замерзнуть в трубах.
Схема монтажа печного теплообменника
Шаг 7. На стенку печи навешивается теплообменник (либо его штуцеры выводятся через технологические отверстия печи, а змеевик располагается внутри так, чтобы в дальнейшем не происходило контакта металла корпуса с открытым пламенем). Крепежи затягиваются. К теплообменнику подводятся и подключаются фитингами гибкие гофрированные шланги или трубы. При необходимости, в стене высверливаются отверстия диаметром чуть больше диаметра труб.
Высверливание отверстий
Протягивание подводки через отверстия в стене
Подключение подводки к теплообменнику
Шаг 8. Система обязательно тестируется на герметичность посредством подачи воды под давлением.
Банная печь с теплообменником подключенная
Пример подключения выносного бака к теплообменнику банной печи
Пример подключения выносного бака к теплообменнику банной печи
Шаг 9. Если у вас металлическая печь, то можно запускать ее в работу. Кирпичную же печь придется достраивать, производить отделку, тестирование и другие подготовительные работы. Впрочем, металлические печи также могут быть обложены кирпичом (их ставят на ребро) с двух или трех сторон. Такой экран дополнительно аккумулирует тепло, повышая КПД печи.
Принцип работы
По принципу действия устройства для подогрева воды делятся на 3 типа:
- змеевик, встраиваемый внутрь отопителя;
- наружный теплообменник в бане в виде прямоугольного бака, нагреваемого прямо от стенки печи;
- наружный водяной контур, отбирающий теплоту дымовых газов.
Примечание. Существуют модели, где в тело печи встроен не змеевик, а бак для воды из нержавейки. Их принципы действия аналогичны.
В первом случае теплообменник представляет собой змеевик из стальной трубы, встроенный прямо в топливник. Его располагают таким образом, чтобы труба не подвергалась прямому воздействию пламени, то есть, находилась вне зоны самой высокой температуры. Желательно, чтобы элемент стоял на пути отходящих продуктов сжигания топлива, тогда он не прогорит и прослужит достаточно долго. Встроенный змеевик для нагрева воды на выходе имеет патрубки для присоединения труб, ведущих к выносной накопительной емкости.
В подобных теплообменниках вода прогревается довольно быстро, но при этом назвать процесс эффективным никак нельзя. Ведь нагреватель отбирает тепло напрямую из топки, тем самым уменьшая мощность отопителя. Парная прогревается дольше, соответственно, дров уходит больше. Раскаленные дымовые газы как вылетали в трубу, так и продолжают беспрепятственно вылетать, КПД агрегата остается очень низким (не более 50%).
Примечание. Исключением из этого правила считаются кирпичные банные печи с теплообменником и несколькими ходами движения дымовых газов, обогревающие предбанник и моечную.
Наружный навесной бак из нержавеющей стали – это еще один вариант передачи печного тепла воде. Обычно он подвешивается к одной из боковых стенок топливника и нагревается за счет инфракрасного излучения от нее. Способ привлекает своей доступностью в реализации, но не очень удобен в эксплуатации. Помимо недостатка с прямолинейным отбором теплоты, описанным выше, подвесной бак вдобавок требует постоянного добавления холодной воды.
Чугунный теплообменник
Плюсы тепловых агрегатов из чугуна:
- Высокая теплопроводность – чугунные элементы быстро нагреваются и эффективно передают тепло от одного носителя к другому.
- Медленное остывание – теплообменники из чугуна долгое время остывают, что дает возможность сэкономить на работе отопительной системы.
- Долговечность – чугун устойчив к воздействию слабых кислот и к образованию накипи, поэтому он менее подвержен коррозии, нежели многие другие металлы, что и обеспечивает длительный срок службы теплообменника.
- Возможность увеличения функциональности – уже после установки агрегата к нему можно нарастить новые чугунные секции, тем самым увеличив мощность теплового оборудования.
Минусы чугунных теплообменников:
Громоздкость – чугунные агрегаты отличаются внушительным весом, что усложняет их эксплуатацию и обслуживание. При этом, чем больше масса теплообменника, тем выше его мощность.
- Хрупкость – несмотря на большой вес, агрегаты из чугуна боятся механических ударов: они быстро обзаводятся трещинами, сколами и прочими деформациями.
- Низкая устойчивость к температурным перепадам – хоть чугун и выдерживает максимально высокие температуры, от резких термических изменений на поверхности теплообменника могут появляться трещины, что чревато значительным снижением его работоспособности.
Техника безопасности
Для безопасной эксплуатации печи необходимо соблюдать следующие основные правила. Крепление труб, идущих от теплообменника, не должно быть жестким и неподвижным, ведь при расширении от нагрева они изменяют свои линейные размеры.
Выносной бак следует подобрать так, чтобы вода в нем нагревалась не ранее чем через 2 часа после начала топки, иначе в помещениях будет переизбыток пара. Нельзя заполнять водой емкости, если они разогреты до высокой температуры.
Превышение мощности теплообменника над мощностью самой печи не должно быть более 10%. Уплотнять резьбу в местах соединения деталей следует при помощи материалов, способных выдержать высокую температуру.
Габариты печи должны соответствовать площади отапливаемого помещения, поэтому перед покупкой устройства необходимо рассчитать объем парной, умножив между собой ее ширину, высоту и длину, и от полученного результата вычесть толщину отделки стен.
Современные производители, как российские, так и финские, выпускают широкий ассортимент качественных печей с теплообменником, причем разной ценовой категории, что дает возможность приобрести такие устройства людям с разным материальным достатком.
Как сделать теплообменник своими руками
Чтобы самостоятельно сделать устройство нужно определиться с его разновидностью.
Ниже будут приведены инструкции теплообменников в баню для горячей воды двух видов: около дымохода, внутри печи.
Теплообменник в банную печь около отводящей трубы
Проще и эффективней всего применять медные трубки. Здесь учитывается диаметр дымохода, относительно которого нужно принимать длину трубок (до 2 метров) с диаметром около 10 мм. Меньший размер медных приспособлений значительно увеличивает скорость закипания воды в трубках, а движение жидкости ограничивается. Рекомендуется применять 10 мм трубы.
На оба конца помещаются развальцованные переходники. Развальцовка делается специальными приспособлениями. Эту процедуру нужно выполнять аккуратно. Следует достигнуть ровной поверхности, чтобы не возникали протечки. Вокруг дымохода «обматывается» медная проволока в виде впирали, концы присоединяются к баку с водой. Конструкция готова.
Сложнее оборудовать устройство из двух металлических труб. Первая должна иметь немного больший размер нежели дымоход, вторая – диаметр на 10 см больше первой, сталь толщиной 1-3 мм.
Подобный теплообменник для бани своими руками имеет следующий алгоритм:
- из разных труб отрезаются по два куска, длиной 30 сантиметров. Торцы делаются ровными;
- из металлического листа вырезается две окружности, и проделываются отверстия диаметром второй трубы (меньшего диаметра);
- в полученные отверстия помещается отрезок и хорошо приваривается. Сварной шов не должен иметь непровар;
- в верхней и нижней части должны быть устроены отверстия для крепления патрубков. Вся конструкция должна быть герметичной.
Устройство готово, осталось прикрепить его на дымоотвод и сделать разводку трубопровода. В качестве теплоизоляции нужно использовать алюминиевую фольгу.
Теплообменник в печи
Подобные агрегаты отличаются высокой эффективностью, просты в изготовлении и имеют простую конструкцию. Они могут устраиваться в виде нескольких трубок или изготавливаться в виде бака из нержавейки.
Такая разновидность нагревателей начинает монтироваться совместно со стенами печи для бани. Его размеры подбираются в зависимости от габаритов основного нагревательного оборудования. Входная труба, предназначенная для ввода холодной воды, располагается снизу конструкции, а сверху выходит выходное отверстие. Подобное решение позволяет обеспечить правильную циркуляцию жидкости.
Существует много разновидностей внутренних теплообменников, отличающихся по размерам, конфигурации, материалу и расположению. Оптимальное решение подбирается исходя из особенностей устраиваемой бани и оборудования.
Для создания такого нагревателя, нужно применять только качественные комплектующие, сварные швы делаются герметично. При малейшей протечке потребуется разбирать кирпичную кладку.
Примеры моделей печей
Важно! Для большинства представленных моделей необходимо отдельно докупать теплообменник. Принимается в учет только наличие в данной печи возможности для его установки в качестве съемной опции.. Модели:
Модели:
- Ермак 16 Стандарт Сталь. Этот вариант печи весит 60 кг и позволяет закладывать до 40 кг камней. С помощью такой печи можно обогреть от 8 до 16 кубометров бани. Толщина стали составляет 8 мм. Преимущества: надежность, устойчивость к деформации из-за большой толщины стального листа; высокий уровень эргономичности. Минусы: не слишком привлекательный дизайн.
- Кирасир 10 Finka. Это печь, которая весит 56 кг и позволяет загрузить каменку на 40 кг. Имеет высоту только 68 см, а обогревает от 6 до 12 кубометров бани. Преимущества: гарантия от производителя 5 лет, разумная цена, наличие возможности докупить парогенератор. Недостатки: небольшой объем каменки с доступом лишь сверху изделия. GRILL’D Leo 130 (Long black). Это печь из конструкционной стали, которая весит 57 кг и позволяет заложить 125 кг камней. Она может обогреть от 6 до 13 кубометров бани. Преимущества: привлекательный внешний вид из-за большой каменки, конструкционная сталь в качестве материала изготовления. Недостатки: каменка полностью открыта.
- Варвара Мини с т/о. Весит 83 кг и имеет каменку до 40 кг. Может обогреть от 6 до 12 кубометров бани. Диаметр дымохода 115 мм. Преимущества: имеет встроенный теплообменник, чугунную глухую дверцу, а в качестве базового материала изготовления выступает конструкционная сталь. Недостатки: отсутствие возможности установки бака или парогенератора.
- Гори Ясно Vira 12Т. Вес 40 кг, каменка 30 кг, а обогреть печь может до 12 кубометров пространства. Преимущества: встроенный т/о, компактность и привлекательный вид. Недостатки: материал изготовления нержавеющая сталь, так что нужно аккуратнее обходиться с печью чтобы избежать повреждений.
- Кирасир 25 Silver. Эта банная печь с водяным контуром для отопления весит 90 кг и такой же вес можно закладывать в виде камней для каменки. Изготовлена из конструкционной стали, обогревает от 12 до 32 кубометров бани. Преимущества: надежность и устойчивость к механическим повреждениям, привлекательный внешний вид.Недостатки: отсутствие встроенного теплообменника, что при цене этой печи является явным минусом.
- Везувий Скиф стандарт. Эта модель весит 70 кг и позволяет закладывать до 150 кг камней в каменку. Есть встроенный теплообменник. Преимущества: большая каменка, компактные размеры, возможность обогреть до 24 кубометров помещения. Недостатки: стоимость в отношении функциональности и технических характеристик.
- Ермак 16 ПС. Эта модель весит 75 кг и позволяет закладывать в каменку до 60 кг камней. Обогревает от 6 до 18 кубометров бани. Преимущества: эстетичность, безопасность, конструкционная сталь в качестве материала изготовления, возможность установки бака. Недостатки: нет парогенератора.
- Торнадо 20М1 П МД ТО МИНИ. Имеет вес 105 кг и позволяет загрузить каменку весом до 200 кг. Обогревает от 8 до 20 кубометров бани. Имеет встроенный теплообменник. Преимущества: это чугунная печь для бани с теплообменником для воды, присутствует большая каменка открытого типа. Недостатки: топка без выноса.
- Кирасир 15 Шведка. Весит 77 кг и позволяет закладывать до 50 кг камней в каменку. Имеет возможность для подключения парогенератора, обогревает от 8 до 16 кубометров бани. Преимущества: имеет очень компактные габариты, в качестве материала изготовления применяется прочная конструкционная сталь. Недостатки: нет встроенного теплообменника, что является минусом для печей этой ценовой категории.
Этап первый: монтаж котла
Установка газового прибора, как правило, не вызывает сложностей. Это самый простой этап монтажных работ отопительной системы. Производителями разработано подробное руководство по установке каждого вида котла.
Напольный поставить проще, несмотря на то, что тяжелее по весу и больше размером. Для настенного нужны специальные кронштейны. Они идут в комплекте к прибору. Схема подключения настенного котла к системе отопления указана в инструкции к прибору
Самое важное — выбрать правильно место установки котла, при этом предусмотреть, как будет выполнен подвод труб к котлу.
Выбирая местоположение агрегата, учитывают не только удобство в обслуживании. Нужно соблюдать нормы и требования, которые предъявляются к газовым приборам. Их выполнение является гарантом эффективности и безопасности пользования отопительным агрегатом.
Два основных правила, которые нужно соблюдать:
- Помещение, где будет установлен котёл, нужно обеспечить окном, либо форточкой, которые можно легко открыть при необходимости.
- Рядом с газовым агрегатом нельзя размещать каких-либо приборов или предметов.
Схема подключения напольного котла предусматривает тщательную подготовку основания. Настенный котёл располагают на высоте от 80 см от пола, не ближе полуметра от стен. Это стандартные требования безопасности эксплуатации.
Чтобы знать, как правильно подключить двухконтурный котёл, нужно познакомиться с условиями, которые требуются для устройства дымохода и системы вентиляции.
Очень упрощают задачу турбо котлы, которые не требуют установки громоздких дымоходов и вытяжных систем. Этот вид котлов сегодня приобретает всё большую популярность. Особенность турбо котлов заключается в устройстве принудительного вывода отработанных газов и одновременного притока уличного воздуха, по типу «труба в трубе». Это наиболее безопасная система, так как позволяет ставить газовые агрегаты практически в любых помещениях.
Есть ещё один вид: напольные парапетные котлы. Это бездымоходные энергонезависимые агрегаты. Их используют там, где невозможно соорудить большой дымоход. У парапетных котлов закрытая камера сгорания, она полностью изолируется от помещения. У таких котлов циркуляция теплоносителя происходит самотёком, без электрического насоса. Это их основное отличие от турбированных котлов с коаксиальным дымоходом.
Какие бывают теплообменники для банных печей
Существуют общие классификации, которые применяются для разделения нескольких вариантов изделия по способу действия. В то же время, каждый отдельный тип имеет собственные подвиды. Каждый человек, захотевший соорудить баню, может использовать один из нескольких видов теплообменников или эксплуатировать собственный. Новый вид оборудования появляется если владелец вносит малейшие изменения.
По основным конструктивным характеристикам теплообменники разделяются на такие виды:
По расположению бака для воды
Емкости с жидкостью могут располагаться в разных помещениях (душевая, парная, чердак). Отдельные места установки имеют собственные достоинства и недостатки.
Рассмотрим первый случай – бак монтируется в парной
. Таким образом можно достичь максимальной скорости нагрева воды за счет небольшой длины трубопровода. Недостатком подобного варианта является уменьшение пространства помещения, которое может иметь небольшие размеры.
Бак в душевой (самоварного типа)
решает вопрос со свободным пространством. Небольшим недостатком выступает увеличенная протяженность труб, что влияет на скорость нагрева воды.
Оба варианта отличаются совместной проблемой, связанной со слабым напором воды. Парная комната имеет высоту не более 2 метров. Если прикрепить емкость на максимальную высоту, то расстояние от пола до выходного патрубка составит около 1,5 м. Это значить, что смонтировать привычный стационарный душ не является возможным. Единственный вариант применять гибкий шланг. Чтобы иметь нормальный напор воды, разница высоты не должна быть меньше 10 см.
Компенсация этого недостатка решается просто – вынос бака для воды на чердак (третий способ).
Такой вариант имеет собственные недостатки, связанные с большой протяженностью труб, что приводит к потере тепла. Бак обязательно должен утепляться. Помимо этого, проблема возникает с возобновлением объема воды. Не каждый захочет периодически носить ведра по лестнице, чтобы выносная емкость имела достаточный уровень воды, а проложить к нему водопровод не всегда возможно.
Из этой информации следует, что универсального расположения бака не существует. Каждый человек должен самостоятельно подбирать вариант, исходя из конструктивных особенностей постройки, климатической зоны и наличия инженерных коммуникаций.
По месту расположения теплообменника
По этому показателю устройства разделяются на две категории – монтируемые внутри печи или возле дымохода (отвод дыма должен осуществляться по металлической трубе). Эти варианты имеют свои особенности, но могут прекрасно существовать.
Внутренняя емкость
позволяет осуществлять быстрый нагрев, благодаря близкому расположению к очагу тепла. Здесь имеются риски, связанные с закипанием воды. Кроме этого, произвести ремонт или замену теплообменника невозможно без разбора банной печи, что не очень удобно.
В процессе нагревания воды на стенках образуется накипь, которая снижает теплоотдачу. Каждый миллиметр отложения уменьшает возможность отдачи тепла на 10%, эффективность отдачи тепла со временем уменьшается. В зависимости от региона проживания, характеристики жидкости изменяются, что приводит к частым ремонтным работам оборудования.
Большой слой накипи может образовываться уже через 1 год активного пользования баней. Теплообменник можно очищать при помощи соляной кислоты, но такой подход требует строго соблюдения правил техники безопасности.
Теплообменник на трубу дымохода
в баню не обладает недостатками, связанными с постоянным закипанием воды. Здесь температура нагрева не превышает 100 градусов. Этот параметр стал одновременно и недостатком, поскольку период нагрева увеличился в несколько раз. Теплообменник для бани на трубе позволяет его располагать непосредственно в помещении, при этом не используется полезное пространство.
Редко можно увидеть банный теплообменник, расположенный под камнями печи.
Как самостоятельно изготовить устройство
Несложный змеевик несложно изготовить самостоятельно из медной трубки. Для дымохода диаметром 100 мм подойдет медная трубка с диаметром ¼ дюйма и длиной 3-4 м. К концам трубы следует припаять фитинги с резьбой. Затем трубку заполняют мелким песком, закручивают их и обматывают дымоход.
Между витками желательно оставлять небольшое расстояние – тогда труба от дымохода будет нагреваться и теплопередачей, и инфракрасным излучением. Эту работу удобно выполнять с помощником. Затем песок из трубы вымывают водой под давлением. Присоединяют трубы, ведущие к радиаторам и расширительному баку.
Теплообменник Кузнецова выполняют при помощи сварки. Самый простой вариант – изготовить корпус из газового баллона или трубы большого диаметра.
Для изготовления понадобятся следующие материалы:
- Газовый баллон, труба большого диаметра (300 мм) для корпуса.
- Труба диаметром 32 мм (одну заготовку лучше взять большего диаметра – до 57 мм). Длина заготовок – 300-400 мм, общее количество должно быть достаточно для вырезания заготовок.
- Два небольших патрубка одного диаметра с диаметром дымохода; желательно использовать трубу дымохода – если дымоход сборный, то с одной стороны конструкции патрубок будет с раструбом, который необходим для монтажа теплообменника.
- Два фрагмента стального листа, достаточных, чтобы вырезать заглушки торцов корпуса.
Технология изготовления воздушного теплообменника:
- Большая труба или баллон обрезается в нужный размер.
- Нарезаются 9 заготовок такой же длины из тонких труб.
- Вырезаются круги для заглушек.
- В кругах вырезаются 9 отверстий для труб маленького диаметра; если берется одна трубка большего диаметра, то отверстие для нее вырезается в центре.
- Тонкие трубы вставляются в отверстия заглушек, наживляются при помощи сварки, затем привариваются.
В корпусе по бокам вырезаются отверстия с диаметром, равным диаметру дымохода.
Конструкция из тонких трубок и заглушек вставляется в корпус и проваривается по стыку заглушек и корпуса из большой трубы.
В отверстия по бокам корпуса вставляются патрубки и также провариваются.
Альтернативный вариант:
Какие материалы можно использовать
Идеальный вариант – нержавеющая сталь (например, пищевая аустенитная нержавейка 08Х18Н10 или AISI 304) или медь. Изделия промышленного производства иногда изготавливают из титана. Но цена на эти материалы достаточно велика. Зато они долговечны, не ржавеют, надежны и прочны. Если у вас буржуйка в гараже или самодельная каменка из подручных материалов в бане, вполне возможно применить и черный металл (углеродистую сталь).
Можно применить качественную гофрированную трубу из нержавейки. Оцинкованная гофра – нежелательный и недолговечный вариант. Для змеевика можно применять и алюминиевые трубы (только не для дымоходов твердотопливных печей).
Иногда применяют и оцинкованную сталь, но следует иметь в виду, что при сварочных работах слой цинка испаряется, и все преимущества оцинковки (стойкость к коррозии) сходят на нет. При температуре выше 400 °С цинк начинает испаряться (пары цинка токсичны), поэтому не стоит применять оцинковку для теплообменников на дымоходах твердотопливных котлов.
Простая конструкция: змеевик
Установка бака-теплообменника на дымоход связана с проведением сварочных работ, что по силам далеко не каждому. Более простая конструкция — змеевик, обернутый в виде спирали вокруг дымовой трубы. Змеевик можно изготовить из медной или алюминиевой трубки — эти металлы легко гнутся, имеют высокую теплопроводность и не подвержены коррозии. Диаметр трубки выбирают так, чтобы было удобно ее подключать к штуцерам водяного бака-накопителя. Для гибки удобнее трубы с диаметром не более 28 мм. Длина в любом случае не должна превышать 3 метров — это обязательное условие для естественной циркуляции теплоносителя. Для подключения нагревательного змеевика к баку используют гибкую подводку для горячей воды.
Такую конструкцию теплообменника можно использовать для получения горячей воды, реже — для отопления небольших помещений. Максимальная эффективность нагрева достигается, если установить змеевик на дымоход простой печи типа буржуйки с высокой температурой дымовых газов.
Змеевик на дымоход своими руками
Теплообменник из трубы обычно устанавливают на дымоход металлической печи, установленной в гараже или мастерской, для получения теплой воды или отопления. Возможна также установка змеевика на банную печь.
Необходимые материалы:
- труба из меди, алюминия или стали — около 3 метров;
- гибкая подводка для ГВС диаметром ¾ дюйма — 2 штуки необходимой длины;
- накопительный бак, оснащенный поплавковым краном для подачи воды и сливным краном для ее потребления;
- шаровый вентиль для слива системы.
Последовательность выполнения работ:
- Самое сложное при выполнении такого теплообменника — согнуть трубу в виде спирали, не уменьшив ее сечения. Медные трубы диаметром меньше 28 мм можно согнуть с помощью трубогиба без нагрева. Стальные и алюминиевые, а также трубы большего диаметра перед формовкой необходимо разогреть паяльной лампой.
- Также можно использовать такой способ: трубу заполняют сухим песком и плотно затыкают ее концы деревянными заглушками. Гнут трубу по шаблону — трубе, имеющей диаметр дымохода, после чего убирают заглушки и высыпают песок, трубу промывают под большим напором воды.
- На концах трубы нарезают резьбу и устанавливают переходники для подключения к системе.
- Трубу устанавливают на дымоход. Для улучшения теплопередачи можно произвести пайку змеевика на дымовую трубу оловом, предварительно обезжирив места пайки и удалив окислы ортофосфорной кислотой.
- Бак вешают на стену или устанавливают на опору выше уровня размещения змеевика. Подключают нагреватель к бачку с помощью гибких шлангов. В нижней точке системы устанавливают сливной кран.
При использовании теплообменника-змеевика в закрытых системах отопления необходима установка циркуляционного насоса! Теплоноситель может закипеть, и при плохой циркуляции возможен гидроудар с разрушением элементов системы!
Видео: получение горячей воды от теплообменника-змеевика, установленного на дымоходе
Несколько общих советов
Во время пользования теплообменников возникают некоторые проблемы, способные «испортить настроение». Какие это неприятности и как их можно решать?
Температура нагрева воды в баке
Температура нагрева воды в баке
Нужно «ловить» момент, когда она будет приемлемой, но такой «момент» поймать почти невозможно. Дело в том, что во время приема душа печь продолжает гореть, соответственно, температура воды постоянно повышается. Что делать? Тушить огонь в печи? Это, конечно, не выход.
Мы предлагаем решить проблему при помощи смесителя. Если в бане есть водовод – отлично, он поможет не только создавать комфортную температуру, но и с помощью простейшей автоматики сделать наполнение емкости под воду автоматическим. Можно будет мыться без экономии воды, несколько уменьшаются риски ее закипания в теплообменнике. Если подвод воды отсутствует, то рекомендуем установить дополнительную емкость для холодной воды рядом с баком для теплой воды. Подсоединять его к душу нужно через смеситель.
Схема подключения
Установка теплообменника
Проще всего производится установка теплообменника в бане, когда он идет в комплекте с приобретаемой металлической печью. Надо лишь внимательно изучить инструкцию по эксплуатации и выполнить сборку в соответствии со схемой. Останется только осуществить подключение к системе, об этом будет сказано ниже. Иное дело – монтаж водяного контура в газоход или топку кирпичной печи. Тогда регистр надо изготовить заблаговременно из черной толстостенной трубы либо нержавейки, а затем встроить его в соответствии с проектом печи.
На просторах интернета часто можно прочесть рекомендацию о том, что площадь теплообменника, то бишь его поверхности, должна составлять 1 м2. Утверждение не совсем корректное, ведь печи бывают разные, а рассчитать данный показатель довольно сложно. В этом случае лучше изготовить змеевик по принципу аналогии. То есть, надо отыскать технические характеристики на изделие любого производителя такой же мощности, как у вас, и принять указанную площадь поверхности теплообмена.
Важно. Если изготовить контур с небольшой поверхностью обмена, то вода в нем будет постоянно закипать, что недопустимо. «Перебор» с размером, наоборот, чреват долгим разогревом, в результате к моменту помывки вода в баке останется прохладной.
Что же касается дымоходных теплообменников, действующих по принципу водяного экономайзера, то такой элемент можно как приобрести в готовом виде, так и сварить из двух труб разного диаметра. Помните, чем больше длина контура, тем эффективнее он будет обмениваться теплом с дымоходной трубой.
Для чего нужен теплообменник?
Подавляющее большинство конструкций банных печей не способствует экономии древесного топлива. Это объясняется специфическими требованиями к ним, а именно:
- парная должна протапливаться за возможно короткое время до высокой температуры;
- печка не может занимать много места;
- наличие каменки – обязательно;
- режим работы отопителя – периодический.
Исходя из перечисленных требований, печи для бани конструируются таким образом, чтобы быстро достигать высокой температуры в топке и поддерживать ее в течение определенного промежутка времени. При этом много неиспользованного тепла попросту уходит в атмосферу через дымоходную трубу. Грех не пустить эту тепловую энергию на подогрев воды для помывки или даже отопления смежных с парилкой помещений.
Примечание. Исключением являются кирпичные колпаковые печи Кузнецова, предназначенные для бань. Продуманная конструкция позволяет существенно экономить дрова, печь долго держит тепло и к тому же обогревает соседние помещения. Существуют и модификации с применением водяного теплообменника.
Одно из самых простых решений – это использовать тепло, выделяемое при сжигании древесины. В настоящий момент на рынке предлагается множество моделей печей со встроенным змеевиком. Если же отопитель без водяного контура уже установлен и функционирует, ничто не мешает оборудовать его самодельным или заводским теплообменником. Тогда не придется тратиться на бойлер и потом платить за электроэнергию.
Возможные неисправности
Конструкция печи с теплообменником так проста, что в процессе ее работы неисправностей практически не отмечено.
Исключением может быть только некачественный материал теплообменника, провоцирующий его деформацию.
Заменить теплообменник самостоятельно несложно. Еще одной неисправностью системы может стать протекание стыков труб, присоединенных к штуцерам теплообменника. В этом случается потребуется замена уплотнителя.
Среди различных видов печей, используемых в банях, наличие теплообменника для большинства потребителей является определяющим фактором при выборе.
Банная печь с водяным контуром: положительные и отрицательные стороны
Печь – это сердце бани. А всем известно, что для полноценного функционирования организма необходимо хорошее сердце. Так и в случае с баней: качество печки определит общую функциональность всей постройки.
В качестве материала изготовления используется металл или кирпич. Что в первую очередь значительно влияет на закладку фундамента под обогревательную конструкцию: кирпич значительно тяжелее металла и основание требует более прочное.
Фото печи с водяным контуром
Совет: при укладке кирпичной печи для бани применяйте специальные огнеупорные изделия, например, огнеупорные шамотные кирпичи. Потому что использование иных, таких как двойной силикатный кирпич, приведёт к их быстрой деформации под воздействием высокой температуры.
Кирпичи с повышенной стойкостью к воздействию открытого огня
Помимо материала есть ещё одно улучшение для банной печки – подключение водяных труб.
Трубное отопление в бане
Печь для бани с водяным контуром – это значительное улучшение обогрева, приводящее к экономии на топливных материалах.
Оно даёт следующие возможности:
- Для поддержания тепла требуется намного меньше ресурсов. Таким образом, цена эксплуатации становится ниже.
- За счёт работы печи можно прогревать всю постройку, а не только парильню.
- Равномерность обогрева. В отличие от использования одной только печки, при котором основной жар формируется вокруг неё.
Реализовываться может двумя способами:
Радиаторы
Образец чугунного радиатора
Печи для бани с водяным контуром, реализованным на использовании металлических или чугунных радиаторов, имеют следующую конструкцию:
- Сама печка. Может быть выполнена из таких материалов:
- Кирпич. Тяжёлая конструкция, требующая много трудозатрат. Зато существует возможность выложить своими руками. Прекрасно держит тепло. Подвержена деформации при сильных тепловых ударах.
Кирпичная печь, использующая водяной контур
- Чугун. Высокий уровень теплообмена. Радиаторы также могут быть из такого материала. В минусах очень большой вес, чувствительность перед ударами высоких температур. Также следует отметить, что на сегодняшний день они практически не изготавливаются. Чугунная печь для бани
- Сталь. Хороший теплообмен, множество готовых модификаций по доступной цене. Просты в установке. Меньший вес и стойкость к высоким температурам даже в случае превращения воды в пар из-за выключения циркуляционного насоса.
Металлическая печка для бани
- Теплообменник. Осуществляет обмен холодной и горячей воды. Выводится в сторону от источника нагрева, а его трубки проходят между стенками камеры сгорания и внешним корпусом, что позволяет максимально вобрать тепловую энергию.
Примерная схема монтажа теплообменника для бани
- Циркуляционный насос. Реализует движение воды по трубам, давая возможность прогрева теплоносителя по всем трубам бани. Без него вся система будет бесполезна и сведётся к обычному обогреву от печи.
Варианты насосов
- Трубы и радиаторы. Могут быть из металла или чугуна, на сегодняшний день также активно применяется пластик. Радиаторы располагаются обычно под окнами, где возможны наибольшие потери тепла, и равномерно по зданию, так работающая печь в парилке заодно обогреет в зимнее время и остальные комнаты бани. Трубами соединяем всю систему.
Металлическая современная конструкция
Водяной пол
Водяное подпольное отопление
До момента установки труб и радиаторов всё происходит аналогично: печь, теплообменник, циркулирующий насос.
Затем инструкция отличается:
- Снимаем пол до чернового основания.
- Укладываем слой теплоизоляции для того, чтобы тепловая энергия не расходовалась на обогрев почвы
- Сверху монтируем трубы. Для этого используется два способа: улитка, позволяющий сделать распределение тепла более равномерным, и спираль, более простой в установке. Материалом труб может быть металлопластик или полиэтилен.
Образец укладки спиралью
- Трубу подключаем к остальной системе.
- Сверху делаем бетонную стяжку или деревянный настил.
Заливка металлопластиковых труб бетоном
Совет: в случае покрытия водяной системы обогрева бетоном используйте обязательно специальные добавки, предназначенные для повышения устойчивости к высоким температурам. Потому что обычная цементная смесь расширяется при нагреве, что приведёт к появлению трещин и деформаций.
Преимущества:
- Оптимальное распределение тепла в помещении. Позволяет ещё более сэкономить затраты на достижение нужной температуры.
- Эффект тёплого пола. Что весьма приятно при условии передвижения по бане босиком.
- Компактное размещение. Радиаторы занимают довольно-таки много места вдоль стен и являются травмоопасными. Подпольный же вариант лишь поднимет на несколько сантиметров уровень напольного покрытия.
Заключение
Классическое банное отопление, пришедшее из давних времён, на сегодняшний день можно значительно модернизировать. Для этого осуществляется монтаж и подключение водяного контура, который можно реализовать путём установки радиаторов или системы водного тёплого пола.
Это значительно сократит финансовые затраты на отопление путём оптимизации распределения тепла. Даст возможность параллельно обогреть все помещения бани, а не только парильную комнату.
К минусам можно отнести только зависимость от электроэнергии. Она необходима для работы циркуляционного насоса, без которого в свою очередь невозможно функционирование водяного контура.
Аккуратное размещение современных радиаторных систем в сауне
Видео в этой статье ознакомит вас с дополнительными материалами.
Идите в ногу со временем – модернизируйте систему отопления вашей бани!
9ban.ru>
Немного о подключении
Устанавливая теплообменник в печь, надо усвоить, что она в первую очередь предназначена для протапливания парной, а подогрев воды – функция второстепенная. Управлять двумя процессами одновременно невозможно, парилка в приоритете, поэтому воде в баке или змеевике ничего не стоит закипеть. Значит, надо обеспечить хороший отбор тепла или достаточную накопительную емкость. По этой же причине не рекомендуется применять в подобных системах циркуляционные насосы, течение горячей среды должно быть естественным.
Печь для бани с теплообменником
Решать вопрос нагрева воды для помывки в бане можно различными способами, в том числе и путем установки электрического бойлера. Зато когда в бане планируется поставить хорошую дровяную печку, то никакое дополнительное оборудование для этой цели и не требуется. Достаточно подобрать и приобрести готовый отопитель с теплообменником либо изготовить последний самостоятельно. Разобраться в вопросах, зачем нужен теплообменник для бани и каким образом его правильно смонтировать, призвана помочь данная статья.

















